SITE WORKS

TAKEOFFS & ESTIMATING

3D Cut & Fill Maps Pavements & Side Walks Utilities & Trenching COMPLETE SITE PACKAGE TAKEOFFS

Visual demonstration without Visiting the Site

Preparing 3D site maps is our speciality

We’ll draw the 3D maps using grading plans and profiles to showcase how the site is before construction

Budgeting Enterprise Site Work Construction & Excavation TAKEOFFS & ESTIMATION
Budgeting Enterprise Site Work Construction & Excavation TAKEOFFS & ESTIMATION

Compare Site Visually Before & After Construction

Visiting site is helpful especially when you can do so from your office. ur 3D maps drawn from the civil set will enable you to see the on ground situation in maps format. EASY TO UNDERSTAND AND DETAILED

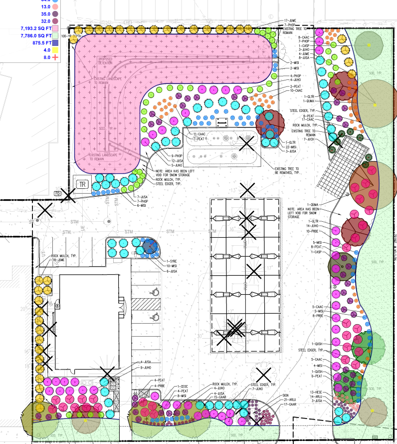
We Provide Marked Plans At No Additional Cost

We’ll provide FREE OF COST marked plans with our estimate deliverables as well.

Budgeting Enterprise Site Work Construction & Excavation TAKEOFFS & ESTIMATION

How We Do it

Budgeting-Enterprise-Takeoff-&-Cost-Estimates

FEE

We charge lump-sum per project. Our fee is very reasonable (No Hidden Fee Ever) and is sure to reduce your current estimation costs

 
Budgeting-Enterprise-Takeoff-&-Cost-Estimates

TURNAROUND TIME

We can meet shortest deadlines even less than 24 hours but it depends on the project size and complexity.

 

Budgeting-Enterprise-Takeoff-&-Cost-Estimates

SOFTWARE WE USE

We use Planswift and BlueBeam industries top leading softwares.

VALUE ADDED SERVICES AT NO ADDITIONAL COST

Budgeting Enterprise Executive Takeoff Summary
Executive Takeoff Summary
Budgeting Enterprise Color Coded Marked Plans
Color Coded Marked Plans
Budgeting Enterprise 3D Cut/Fill Grading Models
3D Cut/Fill Grading Models

WHAT'S NEXT

1) Email Us Your Project Plans

2) Receive Our Affordable Quote

3) We Prepare Estimate & Deliver To You

OUR RECENT PROJECTS

The Estate At Acqualina, FL​​

50 story tall twin towers

Budgeting Enterprise COMMERCIAL PROJECTS TAKEOFFS & ESTIMATION
Budgeting Enterprise Site Work Construction & Excavation TAKEOFFS & ESTIMATION

Pine Lane Warehouse, NY​​

240,000 SF Area New Construction

Scroll to Top